Проходной торцовочный станок CROSS CUT PROFI
Станок предназначен для точного торцевания готовых пиломатериалов на заданный размер в поточных линиях лесопиления различной мощности, при производстве погонажных изделий, паллетной заготовки и др. Станок может быть укомплектован автоматической подачей и выравнивающим подающим столом, что исключает человеческий фактор и увеличивает производительность предприятия и качество получаемой продукции.
ОБЛАСТЬ ПРИМЕНЕНИЯ:
Применяется при массовом производстве пиломатериалов заданной длины или заготовок, например, заготовок для производства паллет.
Благодаря плавной регулировке подачи можно произвести индивидуальную настройку станка с учётом высоты пиления и других факторов. Очень прочная и жёсткая конструкция станка обеспечивает долговременную работу без нарушения параметров точности. Торцовка производится точно под прямым углом. Возможна распиловка всех пород древесины.
ПОЛУЧАЕМЫЕ ИЗДЕЛИЯ:

СХЕМА ОБРАБОТКИ:

Конструктивные особенности Китай CROSS CUT PROFI (от 2 до 8 пил)
|
КОЛИЧЕСТВО ПИЛЬНЫХ УЗЛОВ
Станок оснащен одним неподвижным (базовым) узлом и одним-семью подвижным пильными узлами, которые можно перемещать по станине |
|
ПИЛЬНЫЙ УЗЕЛ
Сам узел состоит из дисковой пилы и цепного подающего устройства, обеспечивающего уверенный захват доски, перемещение ее вдоль пилы и последующий сброс |
|
АСПИРАЦИЯ
Станок оснащен аспирационными отверстиями на каждый пильный узел для удобства подводки воздуховодов. И подключения местной или центральной аспирационной системы |
|
АВТОМАТИЧЕСКАЯ ПОДАЧА ИЗ ПАКЕТА
Для увеличения производительности подача материала организована при помощи цепного подъемника. Сброс доски происходит послойно на промежуточный цепной конвейер |
|
ЛЕНТОЧНЫЙ ТРАНСПОРТЕР НА ВЫХОДЕ
Данный транспортер отводит готовые детали из зоны реза |
|
ЛЕНТОЧНЫЙ ТРАНСПОРТЕР ДЛЯ ОТХОДОВ
Данный транспортер отводит отторцовку из-под станка. Эта опция позволяет облегчить уборку в конце смены. Опционально возможно также установить ленточный конвейер для отвода транспортной рейки |
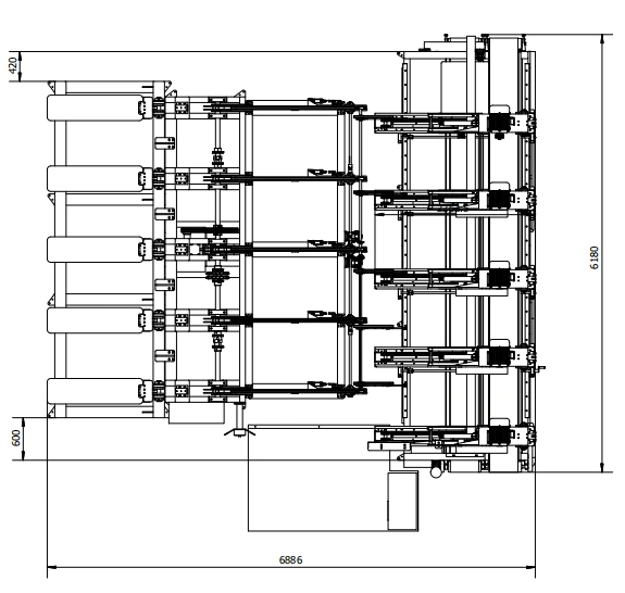
Технические характеристики станка Китай CROSS CUT PROFI (от 2 до 8 пил)
| Параметры заготовки | |
| Толщина заготовки (макс), мм | 60 |
| Минимальная длина заготовки, мм | 2000 |
| Параметры обработки | |
| Максимальная длина заготовки, мм | 5500 |
| Общие характеристики | |
| Скорость подачи, м/мин | до 20 |
| Диаметр аспирационного отверстия, мм | 150 |
| Кол-во пильных суппортов, шт. | 2 - 8 |
| Диаметр пил, мм | 450 х 30 |
| Мощность узлов | |
| Мощность двигателя на одну пилу, кВт | 5.5 |
| Мощность двигателя подачи цепного конвейера, кВт | 1.5 |
| Мощность двигателя подачи ленточного транспортёра, кВт | 1.5 |
| Габаритные размеры | |
| Длина, мм | 7010 |
| Ширина, мм | 6886 |
| Высота, мм | 1970 |
| Вес, кг | 8800 |
- Доставка с фикс. стоимостью (бесплатно от 50 тыс.р.) 100 ₽ подробнее
- Самовывоз бесплатно подробнее
- Доставка с фикс. стоимостью 100р + 50р за каждый кг веса 105 ₽
-
СДЭК
--- ₽
выбрать на карте
-
Почта РФ
--- ₽
выбрать на карте


Отзывы к "Проходной торцовочный станок CROSS CUT PROFI":
Пока нет отзывов